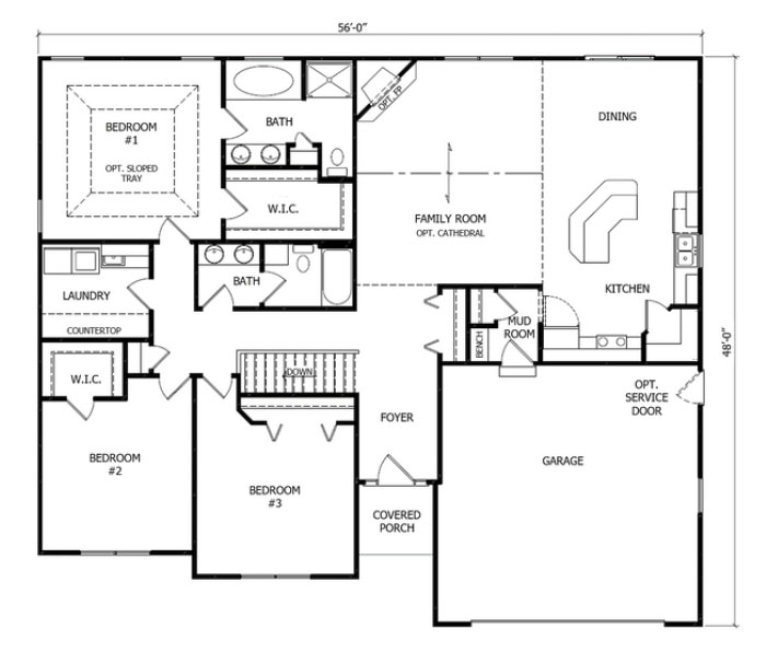
You’ll admire the Alexandria the moment you walk through the front door and into the entryway, spotting a glimpse of the soaring ceilings in the family room and beautiful corner fireplace.
We are delighted that you are interested in a building a new home in the Greater Janesville area! Whether you are currently renting, own an existing home or are moving into the area - planning and building a new home, with Advantage Homes, will be nothing short of a positive experience.
Equal Housing Opportunity
Advantage Homes is pledged to the letter and spirit of the U.S. policy for the achievement of equal housing opportunity. We encourage and support affirmative advertising and marketing programs in which there are no barriers to obtaining housing because of race, color, religion, gender, handicap, familial status, or national origin.