fbpx

Boulder Creek

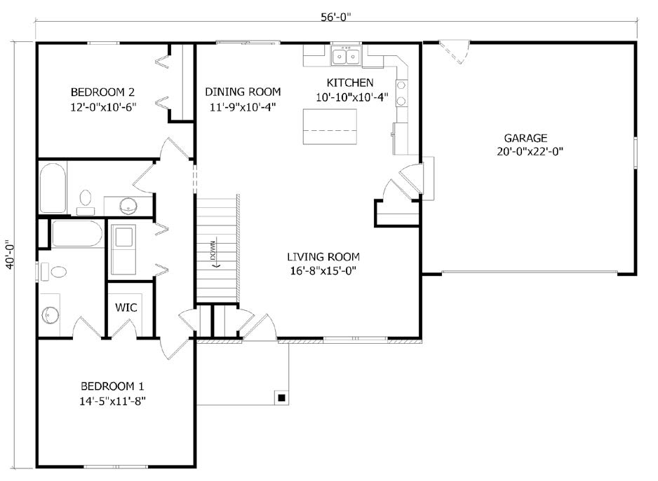
126
2 Bedroom
2 Bath
1195 Sq. Ft.
Boulder Creek
Boulder Creek

http://www.buildadvantagehomes.com/our-floorplans/boulder-creek/

Advantage Homes, Inc. Amwood Homes, Inc.