fbpx

Brewster

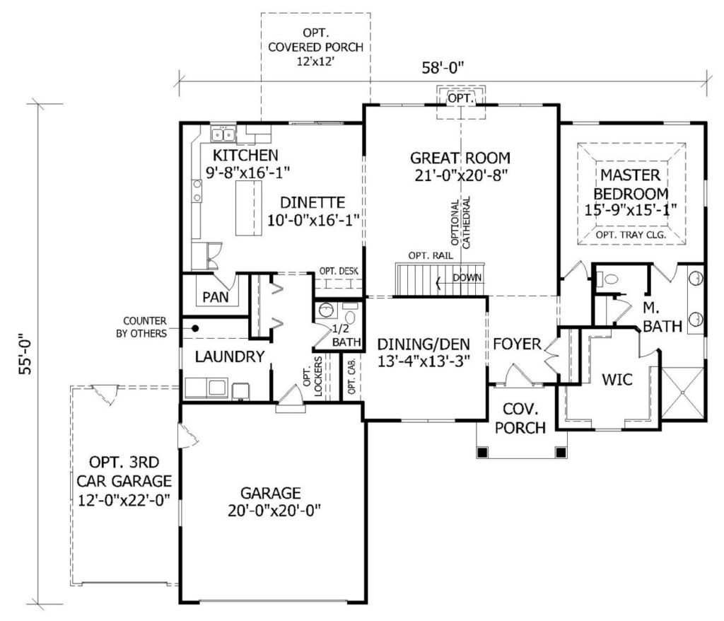
159
1 Bedroom
1.5 Bath
1,927 Sq. Ft.
Brewster
Brewster

http://www.buildadvantagehomes.com/our-floorplans/brewster/

Advantage Homes, Inc. Amwood Homes, Inc.