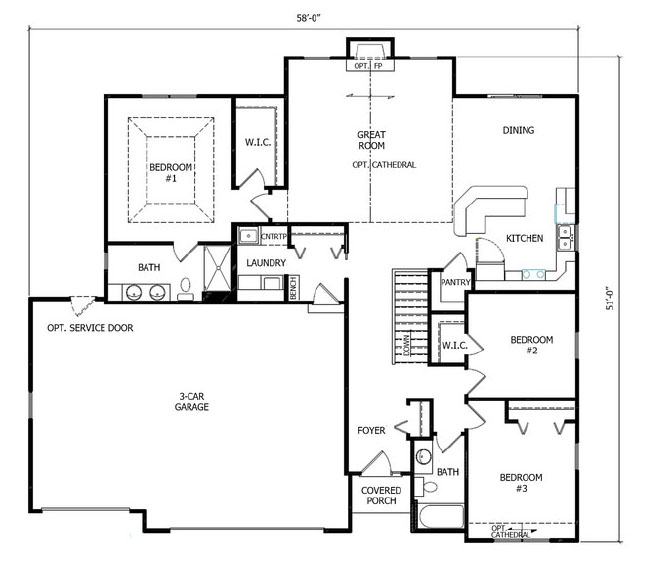
About the Coralville Home
Whether you prefer a Traditional or Craftsman home style, this attractive home plan offers its homeowners the perfect arrangement for entertaining and hosting with its open-concept living area and split-bedroom layout.
Advantage Homes, Inc.

Whether you prefer a Traditional or Craftsman home style, this attractive home plan offers its homeowners the perfect arrangement for entertaining and hosting with its open-concept living area and split-bedroom layout.