fbpx

Crystal River

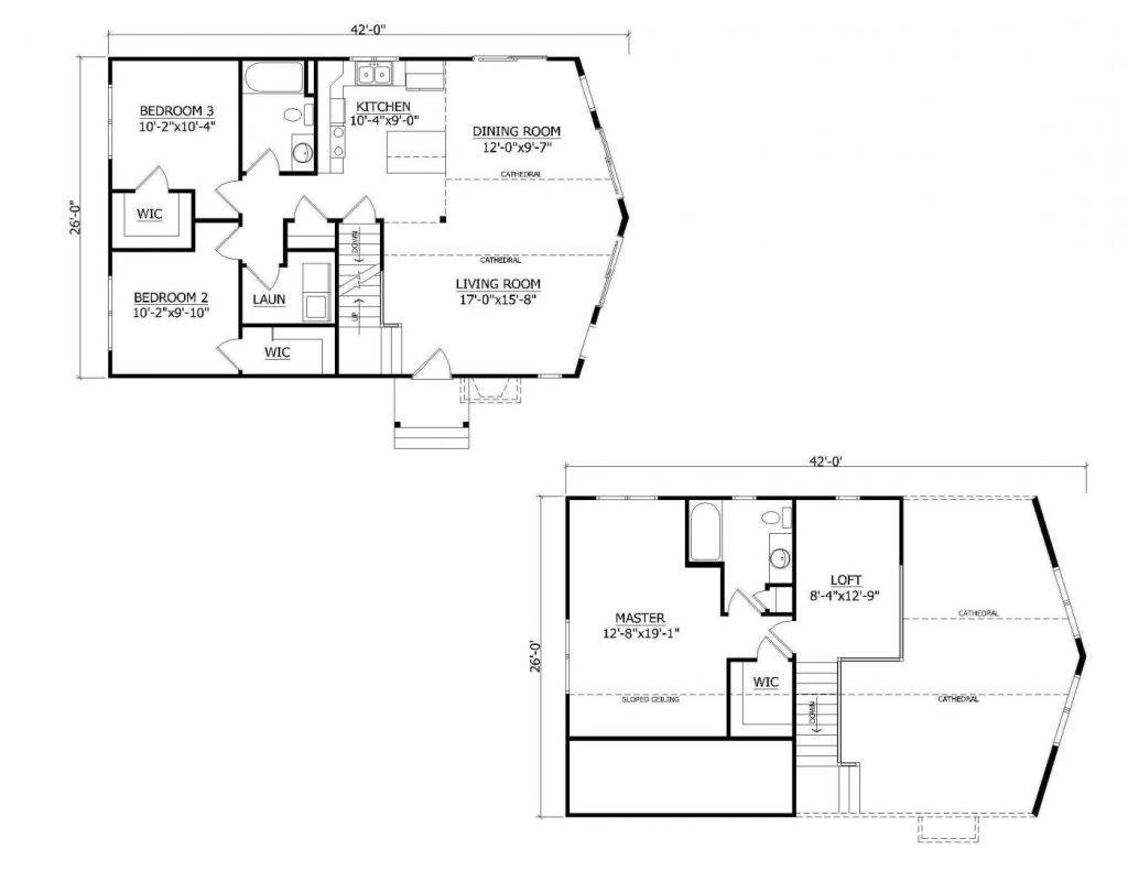
509
3 Bedroom
2 Bath
1,640 Sq. Ft.
Crystal River
Crystal River

http://www.buildadvantagehomes.com/our-floorplans/crystal-river/

Advantage Homes, Inc. Amwood Homes, Inc.