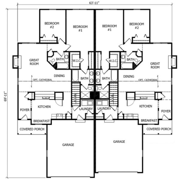
About the Des Moines Home
The Des Moines is an attractive duplex in both the Mid-Century Modern and Craftsman styles. While the exterior is eye-catching, the interior offers a modest yet ideal floor plan for those looking to start small or those who are wanting to downsize!



