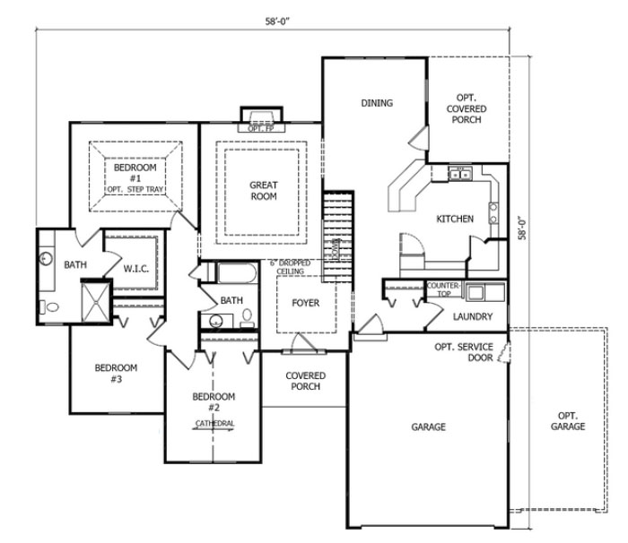
About the Desert Mountain Home
Farmhouse or Mid-Century Modern, the Desert Mountain is simply gorgeous! If you are a fan of natural light, you will fall in love with this home plan the moment you step into its airy, over-sized entry way.
Advantage Homes, Inc.

Farmhouse or Mid-Century Modern, the Desert Mountain is simply gorgeous! If you are a fan of natural light, you will fall in love with this home plan the moment you step into its airy, over-sized entry way.