fbpx

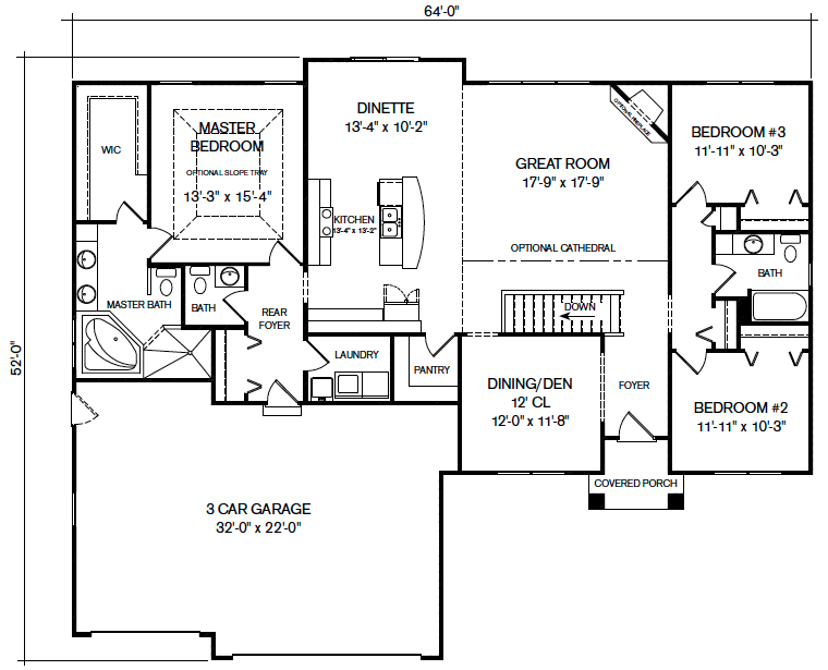
Hawthorne Ridge

136
3 Bedroom
2 Bath
1981 Sq. Ft.
Hawthorne Ridge
Hawthorne Ridge

http://www.buildadvantagehomes.com/our-floorplans/hawthorne-ridge/

Advantage Homes, Inc. Amwood Homes, Inc.