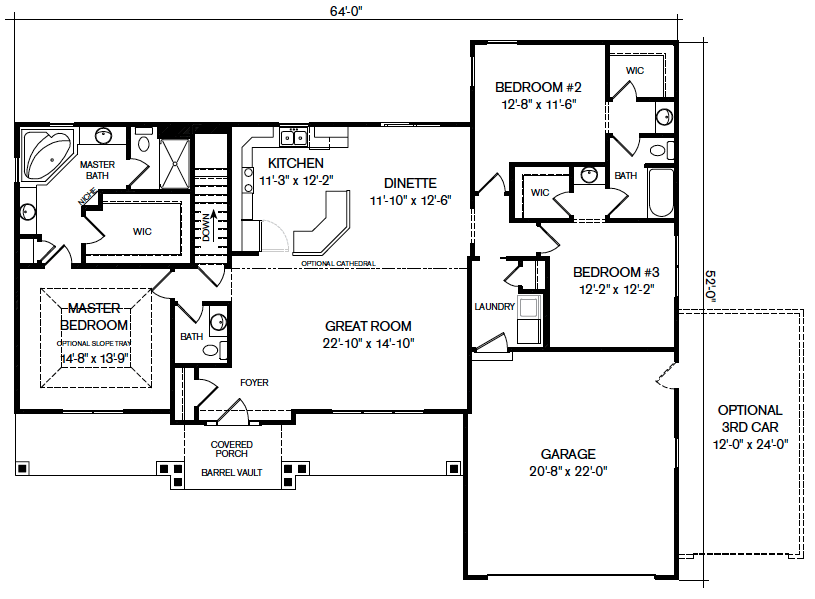
About the Huntington Ridge Home
The front elevation of this home features a unique “barrel vault” entry area and front porch, which adds great curb appeal to this home. It’s split bedroom design features a “Jack and Jill” shared bathroom which allows for privacy for the whole family. Plus a luxurious master bedroom suite features a walk-in shower, soaking tub and a huge walk-in closet which will provide a private retreat for the homeowners.



