fbpx

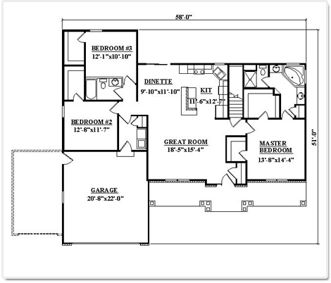
Huntington

119A
3 Bedroom
2 Bath
1,638 Sq. Ft.
Huntington
Huntington

http://www.buildadvantagehomes.com/our-floorplans/huntington/

Advantage Homes, Inc. Amwood Homes, Inc.