fbpx

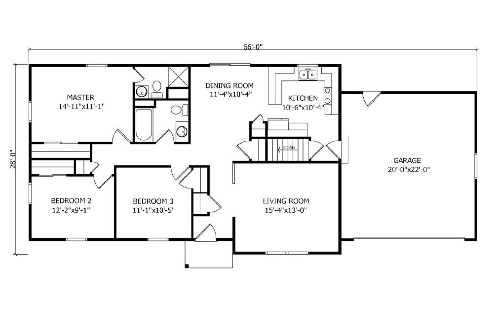
Meadowwood

113B
3 Bedroom
2 Bath
1228 Sq. Ft.
Meadowwood
Meadowwood

http://www.buildadvantagehomes.com/our-floorplans/meadowwood-2/

Advantage Homes, Inc. Amwood Homes, Inc.