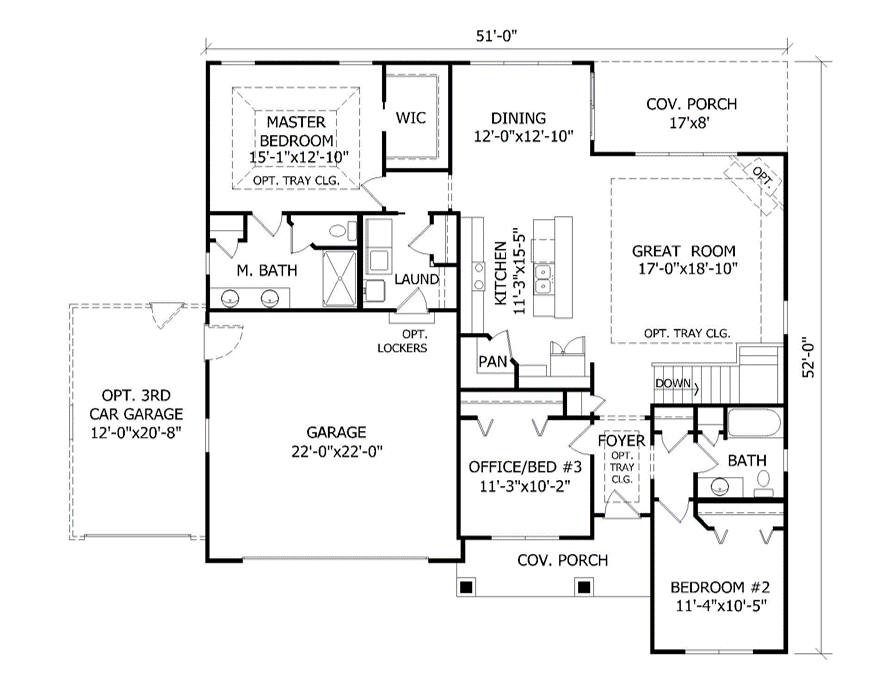
About the Pembrooke Home
This is a 1,694 sq. ft. ranch with 3 bedrooms and 2 baths. This home is nothing shy of appealing and offers plenty of space for the homeowners. It features an open floor plan, along with the option to add on a third-car garage.



