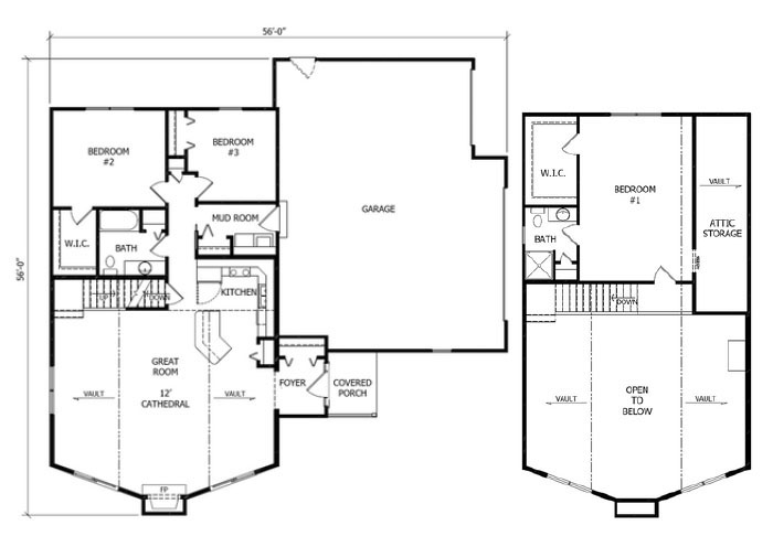
About the Sequoia Home
Looking for your weekend getaway or lake home? The Sequoia is an impressive leisure plan with plenty of space for you and company! Find yourself relaxing in the massive owner suite that completes the second level!
Advantage Homes, Inc.

Looking for your weekend getaway or lake home? The Sequoia is an impressive leisure plan with plenty of space for you and company! Find yourself relaxing in the massive owner suite that completes the second level!