fbpx

Stillwater

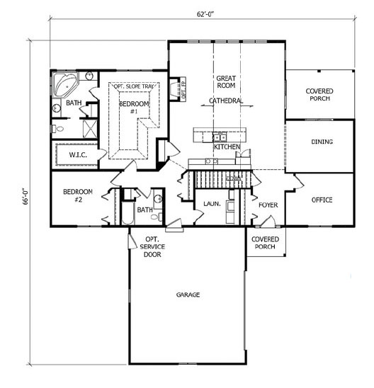
515
2 Bedroom
2 Bath
1,996 Sq. Ft.
Stillwater
Stillwater

About the Stillwater Home

Can you say amazing?! The Stillwater is an incredible leisure plan that can be your personal oasis. You may never even want to leave! There’s no doubt you’ll enjoy your view with the abundance of windows the Stillwater offers!

http://www.buildadvantagehomes.com/our-floorplans/stillwater-home-plan/

Advantage Homes, Inc. Amwood Homes, Inc.