fbpx

Sycamore

411
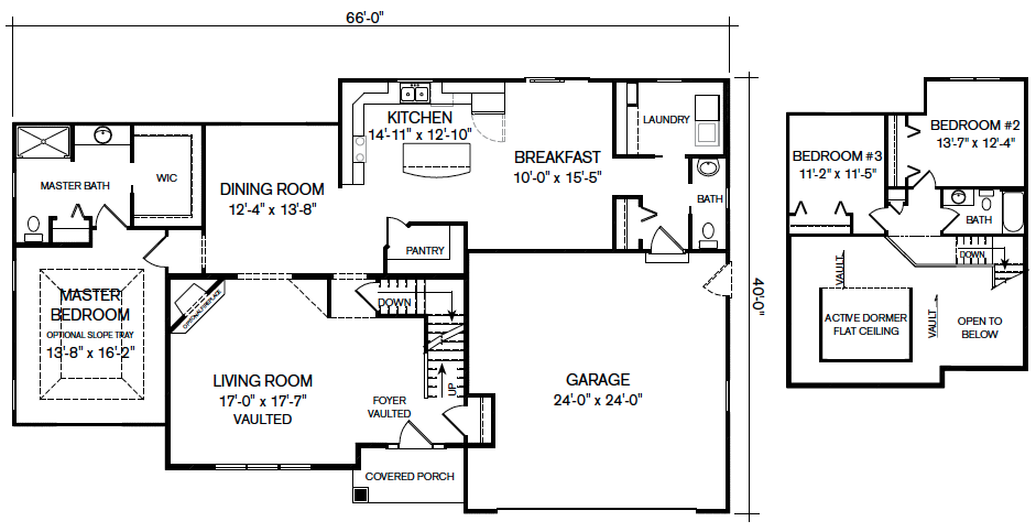
3 Bedroom
2 1/2 Bath
2209 Sq. Ft.
Sycamore
Sycamore

About the Sycamore Home

The charming Sycamore is a 3 bedroom, 2.5 bath two-story home featuring an attractive floor plan with over 2,200 sq. ft.

http://www.buildadvantagehomes.com/our-floorplans/sycamore-2/

Advantage Homes, Inc. Amwood Homes, Inc.