fbpx

Windgate

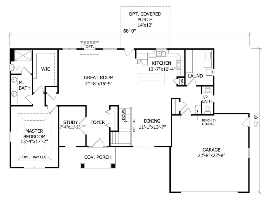
154
1 Bedroom
1.5 Bath
1,615 Sq. Ft.
Windgate
Windgate

http://www.buildadvantagehomes.com/our-floorplans/windgate-2/

Advantage Homes, Inc. Amwood Homes, Inc.