fbpx

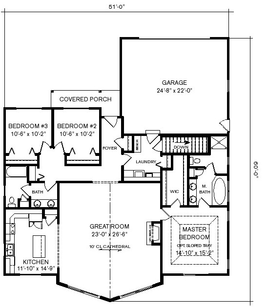
Bear Creek

514
3 Bedroom
2 Bath
1,880 Sq. Ft.
Bear Creek
Bear Creek

http://www.buildadvantagehomes.com/our-floorplans/bear-creek/

Advantage Homes, Inc. Amwood Homes, Inc.