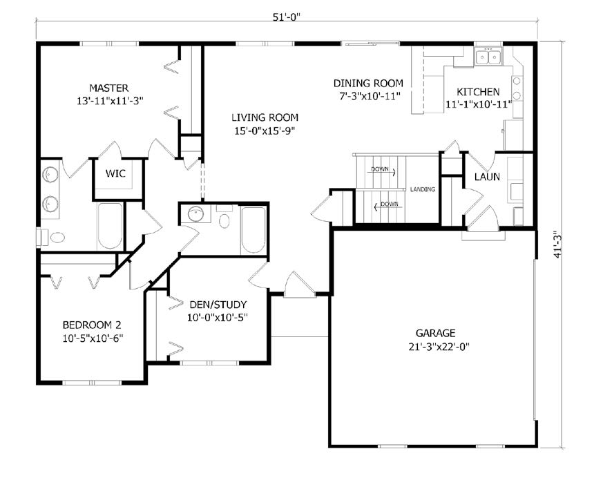
About the Cimmaron Way Home
This 1,380 sq. ft. ranch home has a flexible design and makes for an excellent starter home. It can be built as a 3 bedroom home, or a 2 bedroom home + flex room off of the front hallway. Other features include an open floor plan/great room area and laundry/mud room on the main level.



