fbpx

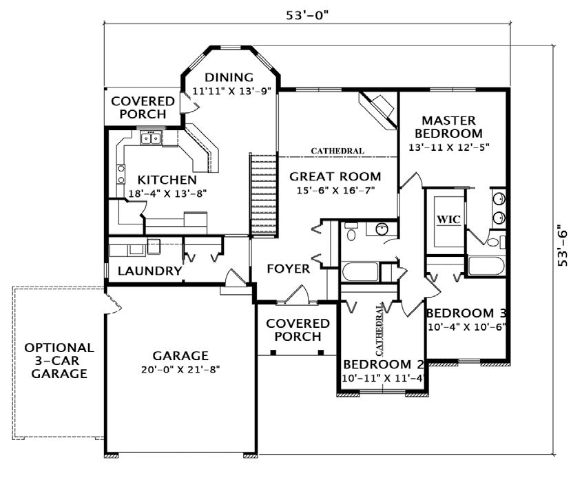
Desert Ridge

124A
3 Bedroom
2 Bath
1,685 Sq. Ft.
Desert Ridge
Desert Ridge

http://www.buildadvantagehomes.com/our-floorplans/desert-ridge/

Advantage Homes, Inc. Amwood Homes, Inc.