fbpx

Lake Shore

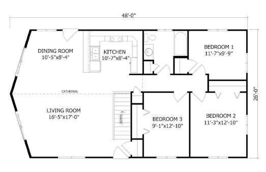
506B
3 Bedroom
1 Bath
1,196 Sq. Ft.
Lake Shore
Lake Shore

http://www.buildadvantagehomes.com/our-floorplans/lake-shore/

Advantage Homes, Inc. Amwood Homes, Inc.