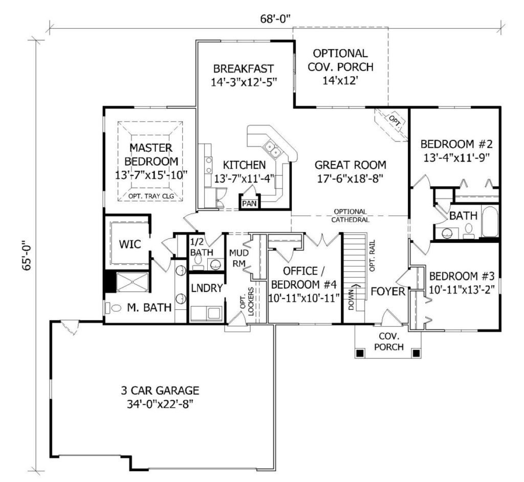
About the Monona Home
This spacious 2,161 sq. ft. ranch features 3 bedrooms and two-and-a half baths, along with a fourth room that can be used as either another bedroom and/or office. This plan also features a three-car garage and the option to add on a covered porch, perfect for entertaining family and friends over the warmer months.



